Leírás
Zavagli, olasz gyártású, elektro-mechanikus, alapkeretes csápos emelő, mely 3 500 kg emelésére képes.
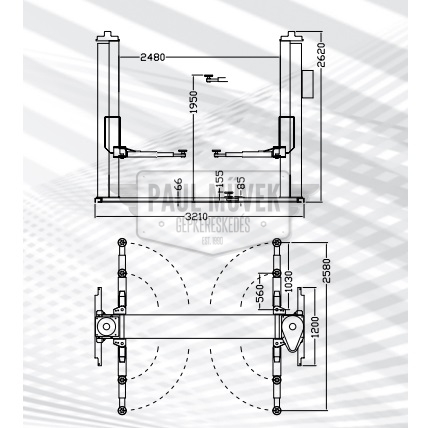
Lánc hajtásos berendezés mely 1 950 mm-re képes az autót felemelni kb 33 másodperc alatt.
Minimális magasság 85 mm.
Az oszlopok közti távolság 2 480 mm,a teljes szélesség pedig 3 260 mm.
Automata olajzó rendszer
Elektromos biztonsági berendezés
A karok forgását rögzítő automatikus szerkezet, amely a padlóra érkezéskor automatikusan kiold
Elektromos lábvédő berendezés.
Rendkívül kopásálló technopolimer csapágyanyák.
Kisfeszültségű vezérlés (24 V).
Hidraulikaolaj nem, a rögzítőcsavarok a gyári tartozék részét képezik.
Tulajdonságok:
- Motorteljesítmény – 3.3 kW
- Áram – 380 V / 50Hz / 3PH
- Teherbírás – 3 500 kg
- Emelő teljes szélessége – 3260 mm
- Oszlopok közötti távolság – 2480 mm
- Emelési/eresztési idő – 33 s
- Emelési magasság – 1950 mm
- Alapmagasság – 85 mm
- Oszlopmagasság: 2 600 mm
- Alapkeret – Van
- Működés – Elektro-mechanikus
- Súly – 600 kg
Opciók:
- 1 fázisú kivitel (230V) – Feláras
- Könyökben állítható csápkarmagasság – Feláras
- Hosszabb emelőkarkialakítás















